בחן את האדריכל שלך

תכנית העמדה (1:50) – (משמשת גם כתכנית לפרזנטציה)

בפוסט הבא אפרט את רשימת התכניות שיש להפיק בעיצוב פנים של דירה, וילה או בשינויי הדיירים, אראה דוגמאות ואפרט אילו נתונים יש לבדוק ולוודא שמופיעים בכל תכנית. הפוסט מיועד גם לסטודנטים ומעצבים צעירים ומהווה צ’ק ליסט לבדיקה עצמית.

לאחרונה נתקלתי בתוכניות שהוגשו לשינויי דיירים ונדהמתי מחוסר המקצועיות שניבט אלי מהנייר. לקוח אחר התמרמר על מעצבת שהראתה לו פרויקט מאוד יפה שביצעה, אך בפועל איכות התכניות שלה לא עמדה בציפיות וגררה הרבה אי התאמות ושינויים בביצוע שכמובן הובילו לתוספת בעלויות ומתיחה של לוח הזמנים. קשר אישי טוב וחיבור למעצבת הם מאוד חשובים אך לא יכולים לבוא על חשבון המקצועיות.
בכל בחירה של בעל מקצוע יש להקפיד ולבקש המלצות, ורצוי מלקוח שעבד מול בעל המקצוע במספר פרויקטים. אני לא מתעצלת, מתקשרת מבררת ושואלת שאלות. השיטה מוכיחה את עצמה ואני לא יוצאת לדרך ללא בירור מקיף וללא המלצות.

אני מציעה לבקש לראות סט תכניות עבודה לדוגמא, אדריכלים מייצרים תכניות ולא בתים, הבניה היא תפקידם של הקבלנים והספקים. התפקיד שלנו הוא לייצר תכניות עבודה, ופה נמדדת היכולת, הכישרון והכי חשוב המקצועיות שלנו. תכנית טובה, מקיפה ומלאה חוסכת שאלות, חוסכת ביקורים בשטח והכי חשוב- חוסכת טעויות. תכנית טובה מגלה את רוב הבעיות עוד לפני שלב הביצוע.

תחום עיצוב הפנים פרוץ לחלוטין וערך הלימודים והתעודה הרישמית נשחק לכדי כלום. אז כיצד תדעו מה לדרוש? איך נוודא שמולנו עומד בעל מקצוע רציני ויסודי? כיצד תדעו מה אמור להופיע בכל תכנית? ומה מטרתה?

תכנית העמדה

מטרה – למקם את הפונקציות השונות בחלל ולתת מידע על פרטי רהוט ו/או נגרות.
בתכנית העמדה אנו רואים את פריסת הריהוט, מטרת התכנית לאפשר לנו לרכוש ריהוט בגודל המתאים, לוודא שיש מספיק מקום למעבר ולראות שיש מקום לפתיחת הדלתות של הארונות, לבדוק שהמתגים לא יכוסו ע”י הארון וכד’. התכנית אמנם דלה במידע יחסית לאחרות אך היא הבסיס לתכנון כל חלל.

מכילה – מספור חללים לאוריינטציה, שטח במ”ר של כל חלל, קורדינאטות של המבנה, מיקום חתכים, מיקומי קירות חלונות דלתות, רהוט, מיקומי מטבח וחדרי שירותים, ציון מפלסים ולעיתים הפניה לנגרות רהיטים.

תכנית בינוי (1:50)

תכנית בינוי

מטרה – לספק מידע לביצוע לקבלן המבצע ולרכז הפניות לשאר התכניות בהן יש פירוט על נושאים שונים.

מכילה –את כל המידע של תכנית ההעמדה – רק ללא הרהוט הנייד, פירוט על סוגי קירות, מידות לבניה, פרוט חומרי הגמר (רצפה, תקרה, קירות), הפניות לפריסת קירות/ חתכים/ אזורים עם תכנית בקנה מידה מפורט, הפניות לרשימות (דלתות, זכוכית, נגרות, מסגרות, אלומיניום, פרטים) והערות מיוחדות.

תכנית חשמל (1:50)

תכנית חשמל

מיקום של כל המתגים, שקעי חשמל ותיקשורת, גופי התאורה וכל אלמנט אחר הדורש חיבור לחשמל. בתכנית חשמל נציין גם מיקום צינור קוברה המחבר בין מסך פלסמה קירי וריכוז השקעים מתחתיו.

תכנית החשמל היא העמוסה ביותר והמאיימת ביותר להבנה, אך תמיד יש לה מיקרא ולפיו ניתן לפצח אותה. בתכניות ביתיות יופיעו גם מעגלי החשמל ומיקום המתגים שלהם, כלומר אילו תאורות ידלקו יחד ואילו לחוד ומאיפה ידלקו. בתכנית החשמל יש הרבה החלטות הנובעות מהצרכים הספציפיים של הלקוח ומהרגלי המחיה שלו.

מכילה – פירוט של מתגים ישירים ומתחלפים, איפיון נקודות תאורה, פירוט סוגי שקעי החשמל והתקשורת, כל אלמנט אחר הדורש חיבור לחשמל כגון וונטה, יחידות מיזו”א וילון חשמלי וכד

תכנית תקרה (1:50)

תכנית תקרה

לספק מידע לקבלן המבצע לגבי בניית הנמכות התקרה, תאום המיקומים של כל האלמנטים מהיועצים השונים בתקרה. תכנית תיקרה בחללי משרדים עמוסה מאוד לעומת תכנית במגורים בה יש הרבה פחות אלמנטים.

למרות שהיא מסורטטת באוריינטציה כמו כל סט התכניות, תכנית התקרה מראה לנו את כל מה שנראה אם – נעמוד בחדר ונסתכל על התקרה. אלמנטים סמויים יסומנו בקו מקווקו .

מכילה – פרוט סוגי התקרות והגמרים (כגון תקרת גבס וצבעה, תקרה פריקה, תקרה אקוסטית וכד’), מיקומים ופירוט גרילים של מיזו”א, פתחים פריקים, מיקום ומיפרט גופי תאורה, שלטי יציאה, רמקולים, ספרינלרים, גלאים, מנורות סימון ולחצנים של אש ועשן, צופר כיבוי אש, כיסויי חלון/ נישה לוילון/ וילון חשמלי, מקרנים או כל אלמנט אחר הנמצא בתקרה. מידות למיקום כל האלמנטים שנמצאים בתקרה והגבהים של התקרות השונות, הפניות לפרטים ו/או חתכים מקומיים

תכנית ריצוף (1:50)

תכנית ריצוף

מטרה – לספק מידע לקבלן המבצע לגבי סוג ואופי הנחת הריצוף.

מכילה – פרוט סוגי ריצוף שונים (מתן אפיונים מדוייקים: סוג גודל וגמר), מפלסים, סוגי פאנלים לקירות, נקודת התחלת ריצוף ו/או כיוון הנחת פרקט, פרוט ספים והפניה לפרטים.

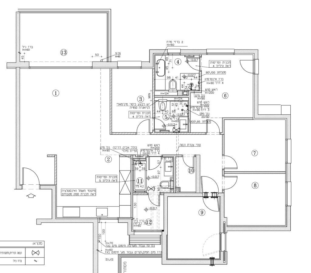
תכנית אינסטלציה (1:50)

תכנית אינסטלציה

מטרה – לספק מידע לקבלן המבצע לגבי מיקומי כל הכלים הסניטריים, הברזים והניקוזים.

מכילה – פרוט מידות למיקום האינטרפוץ, נקודת המים, ראש הטוש, פירוט סוג הברזים ומיקומם, מיקומי ניקוזים וברזי ניל במידה ויש.

תכנית פריסות אמבטיה ו/או מטבח (1:25)

תכנית פריסות אמבטיה ו/או מטבח (1:25)

מטרה – לספק את כל המידע לקבלן לגבי חדרי האמבטיה. פריסות חדרי האמבטיה מוצגות בקנה מידה גדול יותר שכן יש בהן הרבה מידע וגם מידות.

ככל שנדייק ונסרטט את כל האלמנטים שנבחרו ע”י הלקוח כך יקטן הסיכוי לטעויות נפוצות כגון מיקום גובה ברז שאינו מתאים לכיור, חוסר מרכוז בגוף תאורה שמעל למראה, חוסר מרכוז של נקודת הניקוז במקלחון, חיתוכי קרמיקה מיותרים, דלת שנתקעת באסלה ועוד. הברז שמופיע בסרטוט צריך להיראות בדיוק כמו הברז שבחרתם בחנות, כנ”ל שידת האמבטיה, האסלה ואפילו גוף התאורה שמעל למראה.

מכילה – מיקומי כלים סניטריים כגון אסלות, ברזים וכיורים. פרוט סוגי ריצוף וחיפויי קיר, מתן נקודות התחלה לפריסת הקרמיקה בכל קיר וברצפה, ציון מיקומי שקעים וגופי תאורה קיריים, מחמם מגבות, תנור, ונטה במידה ויש.

לסיכום, יש לוודא בכל ביקור בשטח כי יש לקבלן תכנית עדכנית התלויה במקום גלוי וברור באתר הבניה.

אין לבנות ללא תכניות

שיתוף כתבה
MOre Articles
GOV_012
+
הפוסט הזה מוקדש לכל הזוגות הצעירים, אלו שבקושי הצליחו להגיע לדירה ובטח שאין להם כסף לאדריכל. אנחנו דור...
ShirliN-29.9
+
אתם מיוחדים וחשובים! אם זו התחושה שאתם רוצים להעניק לעובדים שלכם, אם אתם לפני שיפוץ או אם אתם מחפשים...
shirleyM-11.2
+
בתחום עיצוב המשרדים, הקורונה הופיעה והביאה איתה מושגים ואתגרים חדשים. הרבה חברות מצאו כי העבודה מהבית...
Shirley_02
+
במדינות מדבריות נהוג להכניס צבע כדי לשבור את החום והשממה, העיר הכחולה בהודו, הפסיפסים והבדים הצבעוניים...
ShirliN-29.9
+
מה לא נאמר על יתרונם של עציצים בסביבת המגורים הקרובה? הם קולטים רעלים, משחררים חמצן נקי לאוויר, הם סופגים...
shirleynachmana aboffice detail 2
+
עם התפתחות גינות הנוי באנגליה במאה ה-18 ועד היום, יכולות הריפוי הרפואיות של הימצאות בסביבה פורחת הוכחו...

שלח לנו הודעה